
Smještena u blizini centra Bihaća, ova zgrada nudi najbolje od savremenog gradskog života, kao mjesto susreta životnog stila, kvalitetne gradnje i prvoklasne lokacije.
Ova vrhunska kolekcija stanova direktno je pozicionirana prema uređenom zajedničkom dvorištu, a samo je na nekoliko minuta od ključnih atrakcija grada. Mjesto na kome možete da živite i stvarate slobodno je mjesto koje zovete dom.



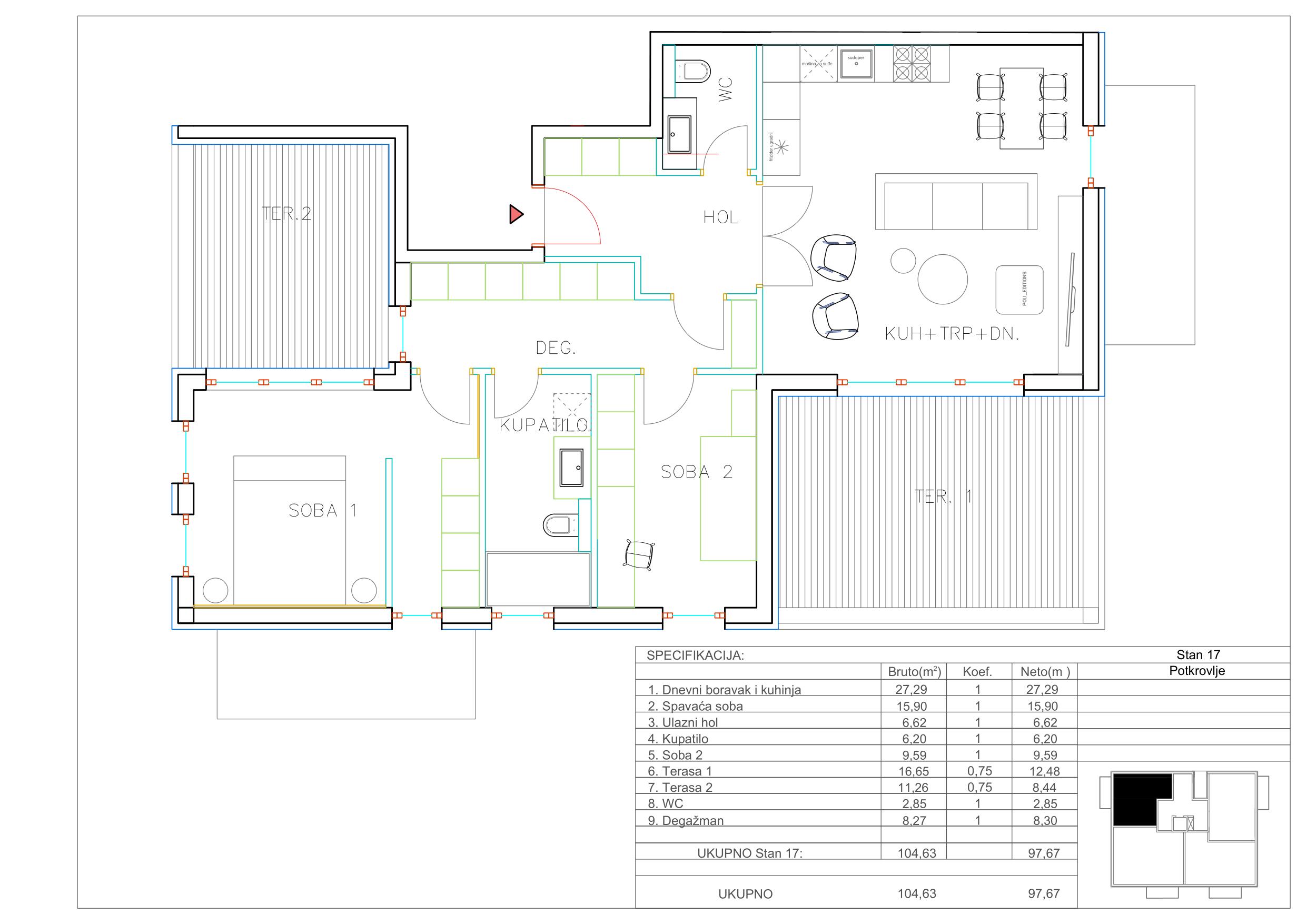
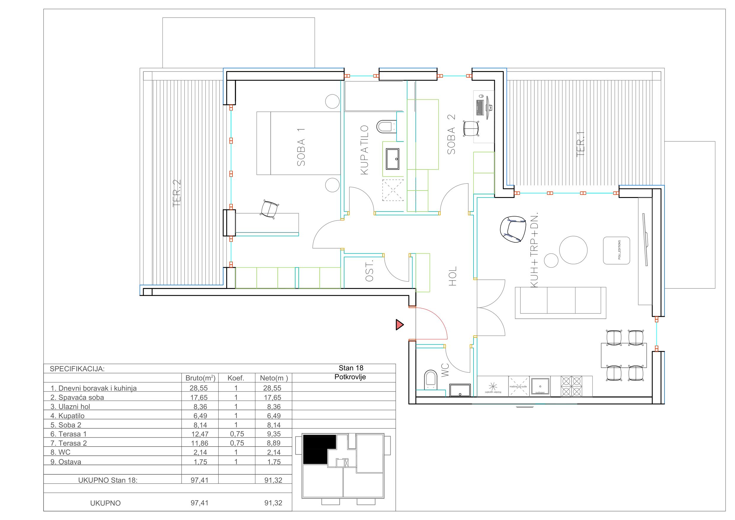
Stambene jedinice u okviru zgrade projektovane su prema raznovrsnim potrebama budućih stanara: od stilski osmišljenih garsonjera, jednosobnih i jednoiposobnih stanova, koji će biti optimalan izbor za investitore, pojedince i mlade parove, do toplih dvosobnih i trosobnih jedinica, idealnih za porodice sa djecom kojima je potreban veći prostor.